Tiny House A31
Erfüllen Sie sich den Traum vom Leben im eigenen Tiny House. Maximale Freiheit in nur 3 Monaten schlüsselfertig geliefert.

Bau- & Lieferzeit
verfügbar
Nutzfläche
Personen
Für Fragen stehen wir gerne zur Verfügung.
Jetzt kontaktierenFAQ
Wir beantworten die häufigsten Fragen.
Sollten Sie noch weitere Hilfe benötigen kontaktieren Sie uns!
Für welche Einsatzzwecke ist das Tiny House A31 geeignet?
Es eignet sich sowohl als dauerhafter Wohnsitz als auch als Ferienhaus oder für Ferienhaussiedlungen – besonders in Regionen mit klassischen Bauvorgaben (z. B. Satteldachpflicht).
Gibt es einen Anschlussservice für Strom, Wasser und Abwasser?
Die bauseitige Herstellung dieser Anschlüsse kann gegen Aufpreis angeboten werden.
Welche Extras können dazu bestellt werden?
Optional erhältlich sind u. a. eine PV-Anlage mit Speicher für Autarkie, eine Terrasse, eine Markise oder ein Terrassendach.
Welche Materialien werden für Fassade und Innenraum verwendet?
Die Außenfassade besteht aus einer Kombination von Holz und Aluminium. Innen wird Fichtenholz verwendet, der Boden ist mit Laminat versehen.
Ist das Tiny House A31 mobil?
Ja, es wird auf einem Fahrgestell geliefert und ist für den Transport mit einem B+E-Führerschein geeignet.
Wie lange dauert die Fertigstellung?
Nach endgültiger Detailfreigabe durch den Kunden beträgt die Fertigungszeit etwa 3 Monate.
Gibt es verschiedene Ausstattungsvarianten?
Ja, es gibt zwei Ausstattungslinien:
- BASIC (technikfertig): Das Haus ist funktional ausgestattet mit Isolierung, Elektrik, Wasser, Abwasser und einfacher Innenverkleidung.
- COMFORT (schlüsselfertig): Zusätzlich voll ausgestattetem Badezimmer (Duschkabine, Spültoilette, …)
- PREMIUM (bezugsfertig): Das gänzlich ausgestattete Sorglos-Paket. Hier sind perfekt für das Tiny House A31 angepasste Möbel und Geräte inkludiert.
Mehr Info zu den Ausstattungsvarianten gibt es in der Preistabelle.
Für wie viele Personen ist das Tiny House A31 geeignet?
Es bietet Platz für bis zu 4 Personen und zusätzlich für 2 Gäste.
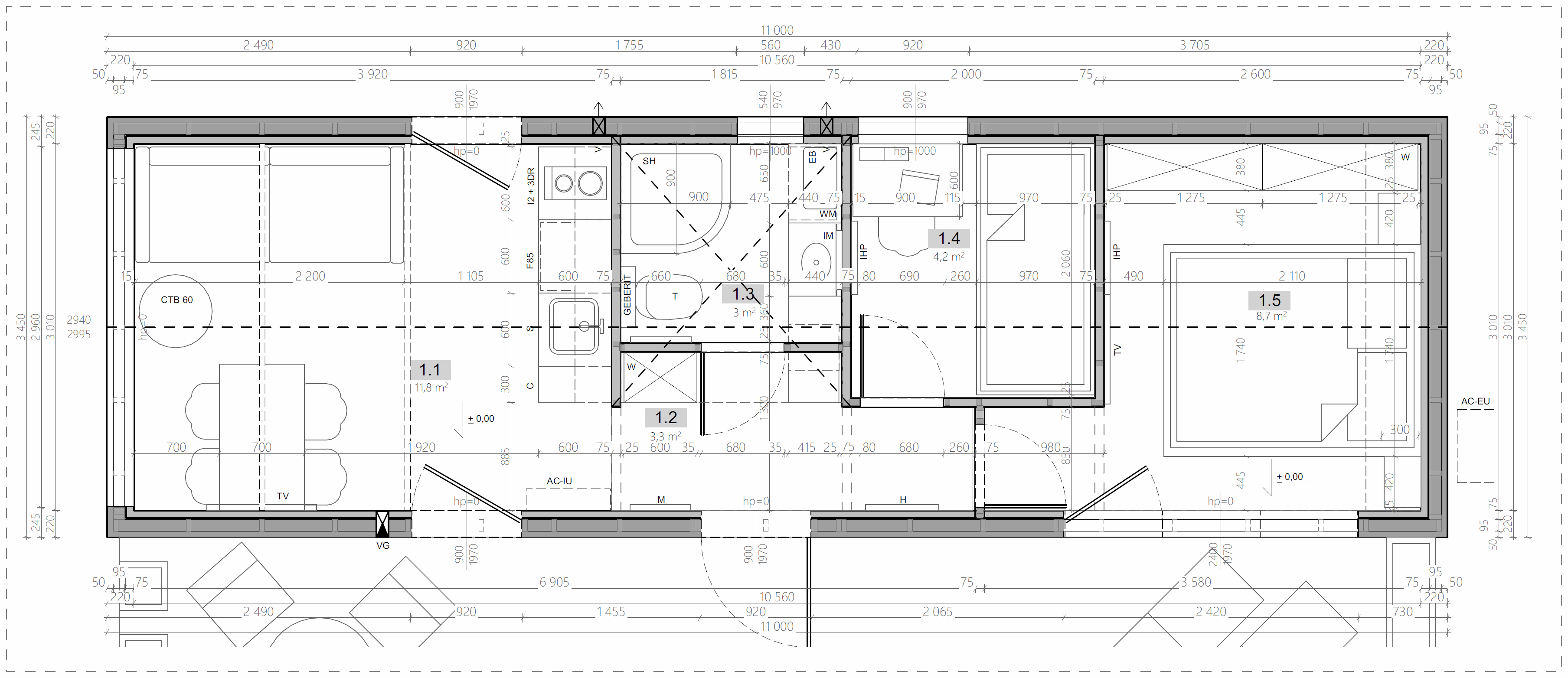
Wie groß ist das Tiny House A31?
Das Tiny House A31 misst 11 m in der Länge, 3,45 m in der Breite und 4 m in der Höhe.














