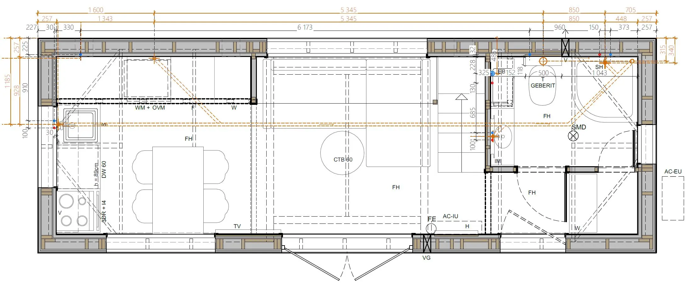
Tiny House B33
Erfüllen Sie sich den Traum vom Leben im eigenen Tiny House. Maximale Freiheit in nur 3 Monaten schlüsselfertig geliefert.

Bau- & Lieferzeit
verfügbar
Nutzfläche
Personen
Für Fragen stehen wir gerne zur Verfügung.
Jetzt anfragenFAQ
Wir beantworten die häufigsten Fragen.
Sollten Sie noch weitere Hilfe benötigen kontaktieren Sie uns!
Gibt es einen Anschlussservice für Strom, Wasser und Abwasser?
Die bauseitige Herstellung dieser Anschlüsse kann gegen Aufpreis angeboten werden.
Welche Extras können dazu bestellt werden?
Optional erhältlich sind u. a. eine PV-Anlage mit Speicher für Autarkie, eine Terrasse, eine Markise oder ein Terrassendach.
Welche Materialien werden für Fassade und Innenraum verwendet?
Die Außenfassade besteht aus einer Kombination von Holz und Aluminium. Innen wird Fichtenholz verwendet, der Boden ist mit Laminat versehen.
Wie lange dauert die Fertigstellung?
Nach endgültiger Detailfreigabe durch den Kunden beträgt die Fertigungszeit etwa 3 Monate.
Gibt es verschiedene Ausstattungsvarianten?
Ja, es gibt zwei Ausstattungslinien:
- BASIC (technikfertig): Das Haus ist funktional ausgestattet mit Isolierung, Elektrik, Wasser, Abwasser und einfacher Innenverkleidung.
- COMFORT (schlüsselfertig): Zusätzlich voll ausgestattetem Badezimmer (Duschkabine, Spültoilette, …)
- PREMIUM (bezugsfertig): Das gänzlich ausgestattete Sorglos-Paket. Hier sind perfekt angepasste Möbel und Geräte inkludiert.
Mehr Info zu den Ausstattungsvarianten gibt es in der Preistabelle.














